This Dream Multigenerational Home Makes Living With Your Parents Irresistible

Two beautifully combined homes offer a perfect multigenerational living solution in Burleson, Texas.
Two distinct homes, thoughtfully combined, create an unparalleled multigenerational living opportunity in Burleson, Texas. (photos: Norman & Young)

In an age where family bonds are increasingly cherished and practical living solutions are paramount, the concept of “multigenerational living” has moved beyond a nostalgic ideal to a modern necessity. Once a staple of American life, depicting households where grandparents, parents, and children shared a common roof and intertwined daily lives, this lifestyle is experiencing a powerful resurgence. Remember the heartwarming dynamics of shows like The Waltons, with their iconic “Good night John-Boy” farewells? That was a quintessential portrayal of families thriving together under one roof, a model that is once again becoming highly desirable for its myriad benefits.

Multigenerational living describes a household arrangement where multiple generations of a family—typically grandparents, parents, and children—reside together. This way of life was once the norm across the United States, especially in rural areas, fostering strong community ties and shared responsibilities. However, after World War II, advancements in transportation and burgeoning economic opportunities spurred a significant migration from farms to urban centers. The nuclear family unit became the prevalent model, and the sprawling multigenerational household gradually became less common.

Expansive multigenerational property in Burleson, TX, featuring a pool and ample land.
Set on an impressive 1.57 acres in Burleson, this exceptional property provides generous space for multigenerational living, complete with a sparkling pool and abundant green areas.

Today, a confluence of factors is driving this remarkable return to shared living. People are living longer, healthier lives, often requiring varying degrees of support in their later years. The ever-increasing cost of living across the nation puts financial strain on families, making shared housing an attractive economic solution. Furthermore, a deep-seated desire for stronger family connections, emotional support, and the convenience of built-in childcare or elder care is inspiring many to reconsider their living arrangements. This renewed interest has propelled the multigenerational home and its associated lifestyle back into the spotlight, particularly in dynamic real estate markets like Burleson, Texas, where unique properties cater to this growing demand.

Modern and inviting kitchen at 205 Meadow Creek Lane, perfect for family meals.
The beautifully appointed kitchen of 205 Meadow Creek Lane, designed for comfort and connectivity.

The Resurgence of Multigenerational Living: A Modern Imperative

The trend towards multigenerational living is so significant that it’s reshaping the real estate and construction industries. New home builders are now meticulously designing floor plans that incorporate features specifically tailored for extended families. This includes homes with two primary suites, often located in separate wings, offering privacy and independent living spaces for elderly parents or adult children. Existing homeowners are also investing substantially in renovations, adding private rooms, in-law suites, or even detached guest homes to accommodate aging relatives, boomerang kids returning home, or simply to foster a closer-knit family environment. These thoughtful modifications ensure that while families live together, individual space and autonomy are still respected.

As essential expenses like groceries, transportation, housing, clothing, and taxes continue to outpace wage growth, the financial prudence of multigenerational living becomes undeniably clear. Pooling resources can significantly reduce housing costs, utility bills, and even childcare expenses. Beyond the economic advantages, the emotional and practical benefits are immense: enhanced social interaction, shared responsibilities, the invaluable presence of grandparents in children’s lives, and a built-in support system during challenging times. It’s clear that this living model is not merely a passing fad but a pragmatic and heartwarming solution poised to once again become a norm in communities across Texas and beyond.

Spacious and elegant living room at 205 Meadow Creek Lane in Burleson, TX.
The inviting and spacious living room at 205 Meadow Creek Lane, perfect for family gatherings and relaxation.

This growing demand for harmonious extended family living brings us to a truly exceptional property situated just south of Tarrant County in Burleson, Johnson County. Here, two distinct, independent homes—elegantly connected by a covered breezeway and sharing a common roofline—are nestled on a single, expansive homesite. This unique setup at 205 Meadow Creek Lane creates an unparalleled opportunity for the most comfortable and functional multigenerational living experience imaginable, offering both proximity and privacy in one stunning package.

Discover 205 Meadow Creek Lane: The Main Residence

While this extraordinary property comprises two unique addresses and two fully independent homes, it is primarily listed under the address of the larger, primary residence: 205 Meadow Creek Lane. This magnificent home spans an impressive 3,529 square feet, providing ample space for a large family. It features three generously sized bedrooms and two-and-one-half luxurious bathrooms, designed with comfort and convenience in mind. The thoughtful layout ensures every member of the family has their sanctuary while also providing abundant common areas for shared moments.

Expansive open kitchen at 205 Meadow Creek, ideal for large family meals and entertaining.
The expansive, open-concept kitchen of 205 Meadow Creek is perfectly designed to comfortably accommodate numerous family members for memorable meals and entertaining.

The main residence boasts a total of three distinct living areas, offering flexibility for various family activities, from quiet reading to lively entertainment. Two of these inviting living spaces share a charming double-sided wood-burning fireplace, creating a warm and cozy ambiance that can be enjoyed from multiple vantage points. The home has recently undergone extensive updates, featuring fresh, contemporary colors, high-quality materials, and modern fixtures throughout, ensuring a move-in-ready experience. Practicality is also key, with an attached three-car garage providing ample parking and storage solutions for the entire family.

Explore 201 Meadow Creek Lane: The Companion Home

Seamlessly connected to the primary residence, 201 Meadow Creek Lane offers a completely independent and equally impressive living space, making this Burleson property truly one-of-a-kind. Access to this second home is elegantly provided via a charming, covered breezeway, ensuring convenience and protection from the elements. This companion home immediately welcomes you with an inviting front porch, perfect for enjoying morning coffee or evening breezes. Spanning a generous 2,980 square feet, this residence features three comfortable bedrooms and three full bathrooms, providing exceptional comfort and privacy for its occupants.

Bright and spacious open kitchen at 201 Meadow Creek Lane, ideal for gatherings.
The bright and open kitchen of 201 Meadow Creek Lane, designed for ease of use and perfect for family get-togethers.

Much like its primary counterpart, 201 Meadow Creek Lane features an open and spacious floor plan, meticulously designed to accommodate even the largest of family gatherings with ease and grace. The flowing layout promotes a sense of connectivity while still allowing for distinct living zones. Whether it’s holiday celebrations, Sunday dinners, or simply everyday interactions, this home provides the ideal backdrop for creating lasting memories. The design emphasizes natural light and a welcoming atmosphere, ensuring that every corner feels inviting and comfortable for both residents and guests.

Versatile living area at Meadow Creek Lane, perfect for a family music room or creative space.
Easily transform one of the versatile living areas into a dedicated music room – imagine the family band performing here!

Both residences at 205 and 201 Meadow Creek Lane offer beautiful, serene views of the sprawling backyard oasis. This private outdoor haven features a wonderfully relaxing swimming pool, complete with ample covered areas, perfect for escaping the Texas sun or hosting outdoor entertainment. The shared amenities extend beyond the immediate living spaces, fostering a true sense of community and shared enjoyment between the two homes. This thoughtful integration of indoor and outdoor living makes the property an ideal retreat for multi-generational families seeking both connection and comfort.

Gorgeous shared pool with beach entry and waterfall between the two homes in Burleson.
The two homes at Meadow Creek Lane share a magnificent pool featuring a beach entry and a tranquil waterfall, creating a resort-like atmosphere.

An Unparalleled Lifestyle: Beyond Dual Homes

But the extraordinary features of this Burleson property extend far beyond two full-sized, luxurious homes. This expansive 1.57-acre estate truly redefines the concept of comprehensive family living. Imagine having not just a refreshing swimming pool and a soothing hot tub for relaxation, but also a picturesque koi pond that adds a touch of zen to your landscape, and a charming pergola perfect for outdoor dining or quiet contemplation. The thoughtful integration of these amenities transforms the backyard into a private resort, providing endless opportunities for leisure and entertainment for all generations.

What truly elevates this property to a league of its own, however, is the presence of dedicated space and essential connections for a mobile home. That’s right—this property isn’t just multigenerational; it offers the potential for multi-multi-generational living! This incredible feature opens up a world of possibilities. Whether you envision accommodating even more extended family members, providing a private space for live-in caregivers, or exploring potential rental income opportunities, the flexibility this offers is virtually limitless. You can invite not only your direct family to live comfortably near you but also welcome distant cousins or long-lost relatives for extended visits, ensuring everyone has their ideal space.

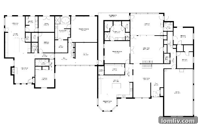
Comprehensive floor plan showcasing 205 and 201 Meadow Creek Lane homes.
A detailed floor plan illustrating the expansive layout of both 205 and 201 Meadow Creek Lane, highlighting their connectivity and independent spaces.

For those who love to tinker, create, or work on projects, this estate also provides two large workshops, each fully equipped with electricity. These versatile spaces are perfect for multi-generational projects, hobbies, or even running a home-based business. From woodworking to arts and crafts, or simply providing additional storage, these workshops cater to a wide array of needs and interests, ensuring that every family member has the space to pursue their passions. The total property includes an impressive five garage spaces, two convenient carport spaces, and these two large, powered workshops – a true haven for any family or enthusiast.

Extensive amenities at Meadow Creek Lane: 5 garages, 2 carports, 2 workshops, and more.
This exceptional property boasts a total of five garage spaces, two convenient carport spaces, two large workshops complete with electricity, and an array of other features making it a truly comprehensive estate.

An Unrivaled Investment Opportunity in Burleson, Texas

Even if your immediate family situation doesn’t currently call for extensive multi-generational living, 205 Meadow Creek Lane represents a tremendous investment opportunity in the thriving Burleson, Texas real estate market. The sheer versatility of this property allows for various income-generating possibilities. The second home could serve as a high-demand rental unit, providing substantial passive income. The mobile home hookups offer another avenue for rental revenue. The expansive workshops could be leased out for storage or commercial use. This adaptability makes the property a smart financial asset, capable of generating significant returns on investment.

Burleson, Texas, is a rapidly growing community known for its excellent schools, friendly atmosphere, and convenient access to the larger metropolitan areas of Fort Worth. Investing in a property like this means securing a stake in a desirable location with appreciating real estate values. The unique features of 205 Meadow Creek Lane—dual homes, extensive acreage, luxurious amenities, and unparalleled flexibility—ensure its appeal will only grow. The possibilities truly are endless in this magnificent Burleson property, making it a standout choice for discerning buyers seeking both a remarkable home and a sound financial investment.

Kate Asay of Asay Group Real Estate has listed 205 Meadow Creek Lane for $890,000. Don’t miss this rare opportunity to own a piece of Burleson’s most versatile and family-friendly real estate.